Référence : 3067
Calculette
Partager
Terrain constructible avec vue panoramique sur les Pyrénées
Description de l'offre
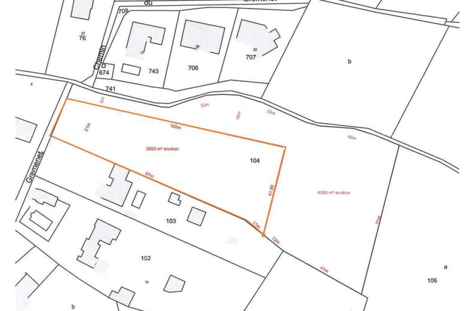
EXCLUSIVITE VERZEILLE, situé en hauteur du village, ce magnifique terrain constructible offre une vue imprenable sur les Pyrénées. Niché au milieu des oliviers, il bénéficie d’un environnement calme et privilégié, parfait pour construire votre maison de rêve. La parcelle est facilement accessible depuis le village, tout en offrant intimité et tranquillité. L’exposition ensoleillée et le relief légèrement en pente permettent de profiter pleinement du paysage et de la douceur du climat méditerranéen. Idéal pour les amoureux de la nature et des grands espaces, ce terrain allie potentiel constructible et charme provençal avec son panorama exceptionnel et ses oliviers environnants. Le village bénéficie de l'ensemble des commodités.
Descriptif du bien
- Code postal : 11250
- surface terrain : 3 000 m²
- Vue : Pyrénées
- Terrain constructible : OUI
- Exposition : SUD
- Terrain Viabilisé : NON
- Copropriété : NON
- Prix de vente : 135 000 €
- Les honoraires d'agence seront intégralement à la charge du vendeur
La ville de Verzeille (11250)
Nous Contacter
Afficher le téléphone 04 68 25 16 17Les informations recueillies sur ce formulaire sont enregistrées dans un fichier informatisé par La Boite Immo agissant comme Sous-traitant du traitement pour la gestion de la clientèle/prospects de l'Agence / du Réseau qui reste Responsable du Traitement de vos Données personnelles.
La base légale du traitement repose sur l'intérêt légitime de l'Agence / du Réseau.
Elles sont conservées jusqu'à demande de suppression et sont destinées à l'Agence / au Réseau.
Conformément à la loi « informatique et libertés », vous disposez des droits d’accès, de rectification, d’effacement, d’opposition, de limitation et de portabilité de vos données. Vous pouvez retirer votre consentement à tout moment en contactant directement l’Agence / Le Réseau.
Consultez le site https://cnil.fr/fr pour plus d’informations sur vos droits.
Si vous estimez, après avoir contacté l'Agence / le Réseau, que vos droits « Informatique et Libertés » ne sont pas respectés, vous pouvez adresser une réclamation à la CNIL.
Nous vous informons de l’existence de la liste d'opposition au démarchage téléphonique « Bloctel », sur laquelle vous pouvez vous inscrire ici : https://www.bloctel.gouv.fr
Dans le cadre de la protection des Données personnelles, nous vous invitons à ne pas inscrire de Données sensibles dans le champ de saisie libre.
Ce site est protégé par reCAPTCHA, les Politiques de Confidentialité et les Conditions d'Utilisation de Google s'appliquent.
