Calculette
Partager
Terrain constructible en oliveraie
Description de l'offre
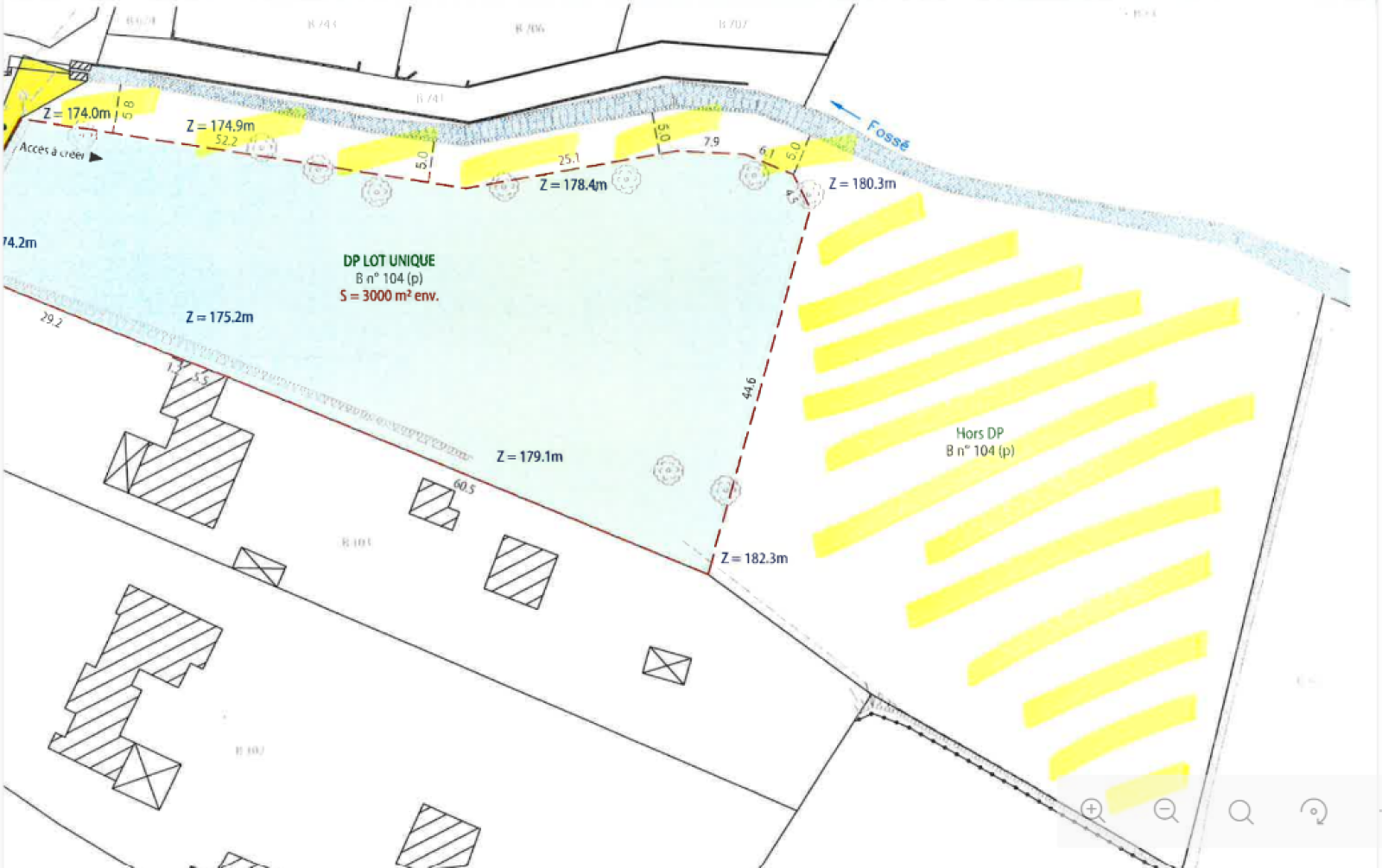
EXCLUSIVITÉ VERZEILLE, situé sur les hauteurs du village, ce charmant terrain constructible, plus intimiste, bénéficie d’un cadre privilégié, calme et verdoyant, idéal pour réaliser votre projet de maison sur mesure. Le terrain est planté d’oliviers, apportant une touche méditerranéenne élégante et authentique à l’ensemble, parfait pour accueillir une future maison de style provençal, en limite de campagne. La parcelle reste facilement accessible depuis le village tout en garantissant tranquillité et intimité. Parfait pour ceux qui recherchent un petit coin de nature et de sérénité, ce terrain allie potentiel constructible et douceur de vivre, avec les commodités du village à portée de main. Issu d’une parcelle initiale de 7 297 m² divisée en deux lots, ce bien correspond à la partie située en hauteur, d’une superficie d’environ 4 200 m² (hachurée en jaune sur le plan annexé), la première partie ayant déjà été vendue. Les informations sur les risques auxquels ce bien est exposé sont disponibles sur le site Géorisques : www.georisques.gouv.fr
Descriptif du bien
- Code postal : 11250
- surface terrain : 4 200 m²
- Vue : Pyrénées
- Terrain constructible : OUI
- Exposition : SUD
- Terrain Viabilisé : NON
- Copropriété : NON
- Prix de vente honoraires TTC inclus : 126 000 €
La ville de Verzeille (11250)
Nous Contacter
Afficher le téléphone 04 68 25 16 17Les informations recueillies sur ce formulaire sont enregistrées dans un fichier informatisé par La Boite Immo agissant comme Sous-traitant du traitement pour la gestion de la clientèle/prospects de l'Agence / du Réseau qui reste Responsable du Traitement de vos Données personnelles.
La base légale du traitement repose sur l'intérêt légitime de l'Agence / du Réseau.
Elles sont conservées jusqu'à demande de suppression et sont destinées à l'Agence / au Réseau.
Conformément à la loi « informatique et libertés », vous disposez des droits d’accès, de rectification, d’effacement, d’opposition, de limitation et de portabilité de vos données. Vous pouvez retirer votre consentement à tout moment en contactant directement l’Agence / Le Réseau.
Consultez le site https://cnil.fr/fr pour plus d’informations sur vos droits.
Si vous estimez, après avoir contacté l'Agence / le Réseau, que vos droits « Informatique et Libertés » ne sont pas respectés, vous pouvez adresser une réclamation à la CNIL.
Nous vous informons de l’existence de la liste d'opposition au démarchage téléphonique « Bloctel », sur laquelle vous pouvez vous inscrire ici : https://www.bloctel.gouv.fr
Dans le cadre de la protection des Données personnelles, nous vous invitons à ne pas inscrire de Données sensibles dans le champ de saisie libre.
Ce site est protégé par reCAPTCHA, les Politiques de Confidentialité et les Conditions d'Utilisation de Google s'appliquent.
